Стандарт Энерго

400120, г. Волгоград, ул. Елабужская, д. 64

тел: +7 (8442) 98-98-83; +7 (917) 338-98-83

e-mail: standart-energo@mail.ru

 
 
О Компании
Документы
Каталог
Вопросы
Галерея
Сертификаты

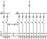
ВРУ1-41/42-00А/01A/02A УХЛ4

Тип ВРУ Принципиальная схема первичных соединений Элементы на схеме Блок управления освещением
обозначение наименование наличие Рисунок схемы
Распределительные панели
ВРУ1-41-00А УХЛ4 ВРУ1-41/42-00А/01A/02A УХЛ4 QF1-QF10 Автоматические выключатели АЕ2056 Нет
ВРУ1-42-01А УХЛ4 Автоматический 30 групп Рис. 3.2
ВРУ1-42-02А УХЛ4 Неавтоматический 30 групп Рис. 3.3

 

Яндекс.Метрика