Стандарт Энерго

400120, г. Волгоград, ул. Елабужская, д. 64

тел: +7 (8442) 98-98-83; +7 (917) 338-98-83

e-mail: standart-energo@mail.ru

 
 
О Компании
Документы
Каталог
Вопросы
Галерея
Сертификаты
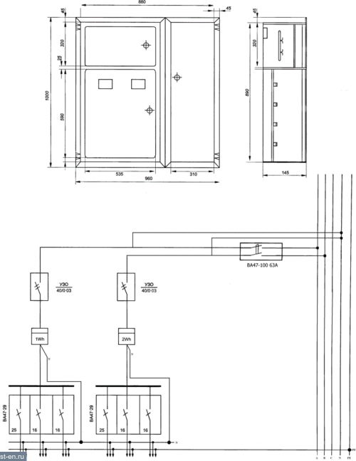
Каталог / Осветительные щитки / Щитки этажные ЩЭ 8801СЭ / На 2 квартиры с вводным автоматом

На 2 квартиры с вводным автоматом

Автомат ВА47-100-100А — 1шт / 3р / ввод
УЗО — 40А/0.03А — 2шт / 2р /
Счетчик 50А — 2шт / 1Ф
Автомат ВА47-29-25А — 2шт / 1р /
ВА47-29 -16А — 4шт / 1р /

Этажный щиток

 

Яндекс.Метрика